Major Refurbishment Approved for Brentford Library


Adult classrooms to be created and upstairs brought into use

Brentford Library

Plans have been approved to refurbish Brentford Library and install two adult education classrooms.

A planning application P/2019/1075 had been approved in May for phase one of enabling works which will refurbish the first floor toilets and hall, and the ground floor staff room and store. This will then enable the side entrance to be used as public entrance once the second phase begins.

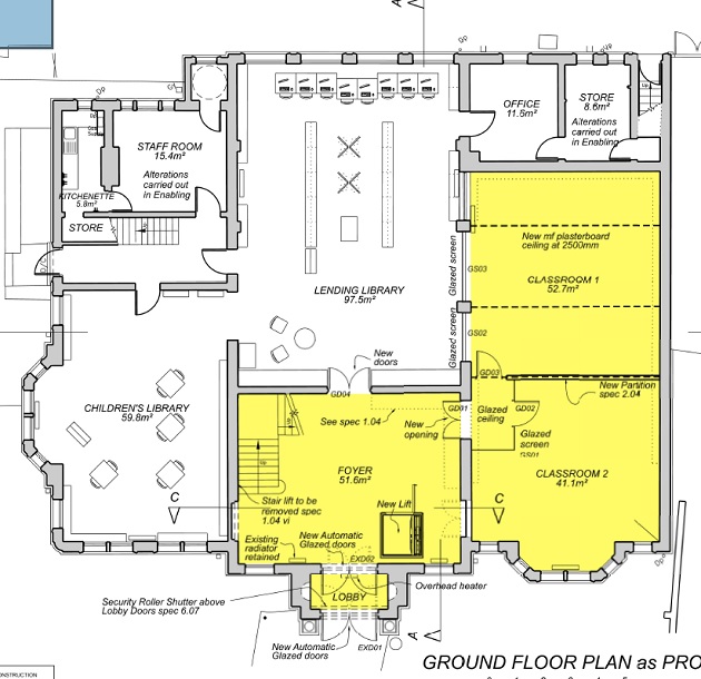
The second phase, planning application P/2019/2089 has just been approved. This will:-

  • create two adult education classrooms and a lobby in the ground floor east wing;
  • install a new platform lift in the entrance hall;
  • Install a new glazed interview room and platform lift in the first floor gallery;
  • Create a new glazed corridor in the first floor library area to enable access to WCs after hours

Proposed Ground Floor

The council wish to ensure that there is little impact on residents during the first phase of enabling works. The main purpose to carry out the first phase of works is to ensure that the library can remain open throughout refurbishment and to accommodate two new Adult Education classrooms, a new lift and new room to replace the existing structure on the first floor landing.

First floor


August 8, 2019

Related links

Visit Hounslow's Planning Portal the accept the T&Cs and enter system or planning number